Элегия
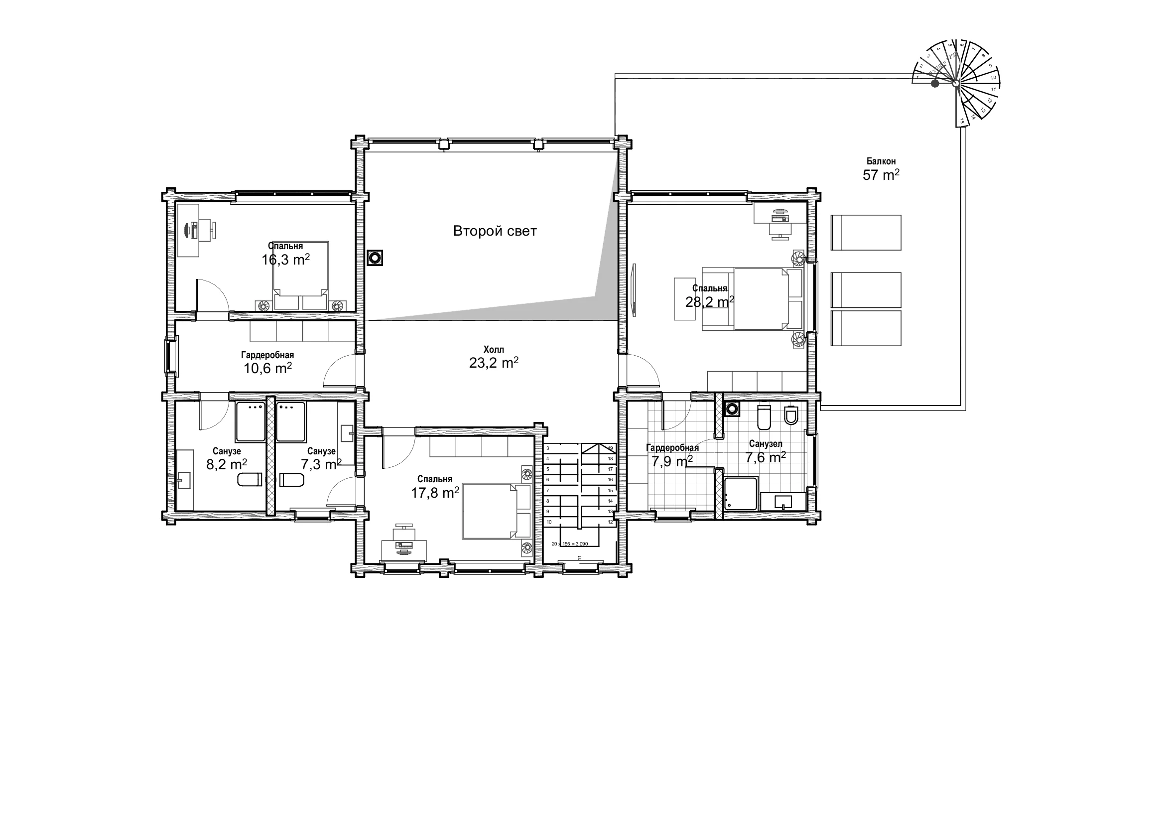
Площадь:
220 м2
Размер:
15 x 18 метров
Этажность:
2
Количество санузлов:
2
Технология:
Клееный брус
Фасады
Стандартная планировка







Мы сотрудничаем с ведущими компаниями на рынке
Наша философия: Построить для вас не просто дом, а надежное, теплое и стильное семейное гнездо, в котором будет комфортно поколениям.
Доверьте мечту профессионалам с десятилетней историей успешных проектов.















































