Кашемир
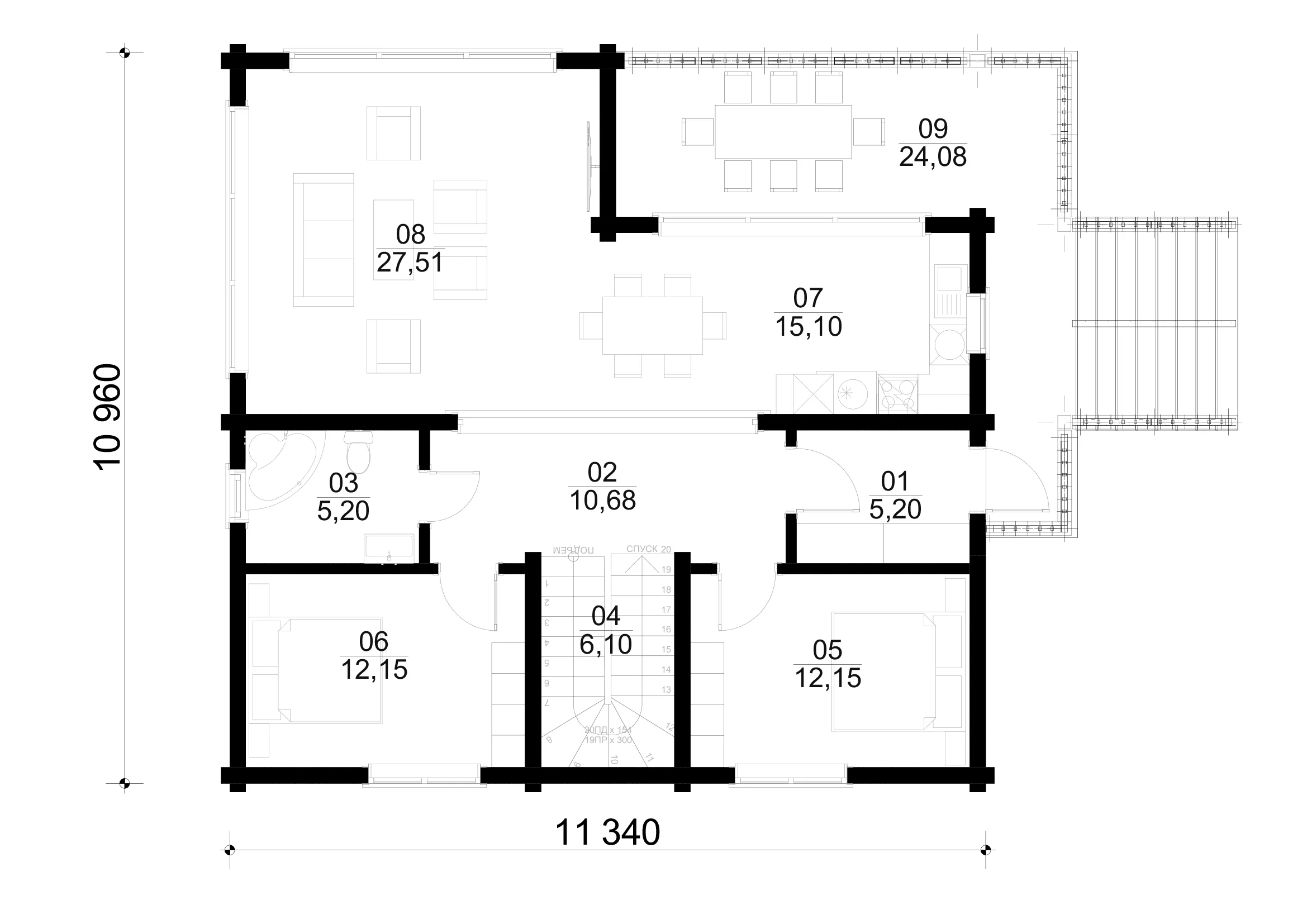
Площадь:
150 м²
Размер:
10х12 м
Этажность:
2
Количество санузлов:
2
Технология:
Клееный брус
Фасады
Стандартная планировка






Мы сотрудничаем с ведущими компаниями на рынке
Наша философия: Построить для вас не просто дом, а надежное, теплое и стильное семейное гнездо, в котором будет комфортно поколениям.
Доверьте мечту профессионалам с десятилетней историей успешных проектов.
























