Строительство
деревянных домов и бань
ОФИС ПРОДАЖ:
г. Минск ,ул. Кнорина д.50, 4 этаж, пом 420

Вальма
Дмитрий баня от Саши ФДмитрий баня от Саши ФДмитрий баня от Саши ФДмитрий баня от Саши ФДмитрий баня от Саши ФДмитрий баня от Саши Ф
Дмитрий баня от Саши ФДмитрий баня от Саши ФДмитрий баня от Саши ФДмитрий баня от Саши ФДмитрий баня от Саши ФДмитрий баня от Саши Ф

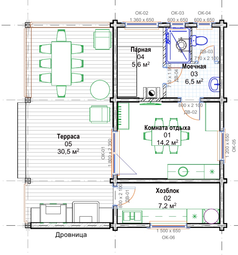
Площадь:
158 м2
Размер:
16х9.9
Этажность:
1
Количество санузлов:
1
Технология:
Клееный брус

Фасады
Стандартная планировка
Дмитрий баня от Саши ФДмитрий баня от Саши ФДмитрий баня от Саши ФДмитрий баня от Саши ФДмитрий баня от Саши ФДмитрий баня от Саши Ф
Дмитрий баня от Саши Ф
Мы сотрудничаем с ведущими компаниями на рынке
технониколь
Tikkurila
remmers
Biofa
металл профиль
финский дом
Наша философия: Построить для вас не просто дом, а надежное, теплое и стильное семейное гнездо, в котором будет комфортно поколениям. Доверьте мечту профессионалам с десятилетней историей успешных проектов.
связаться с нами
Оставьте телефон — мы свяжемся с Вами для уточнения деталей