Юнифокс
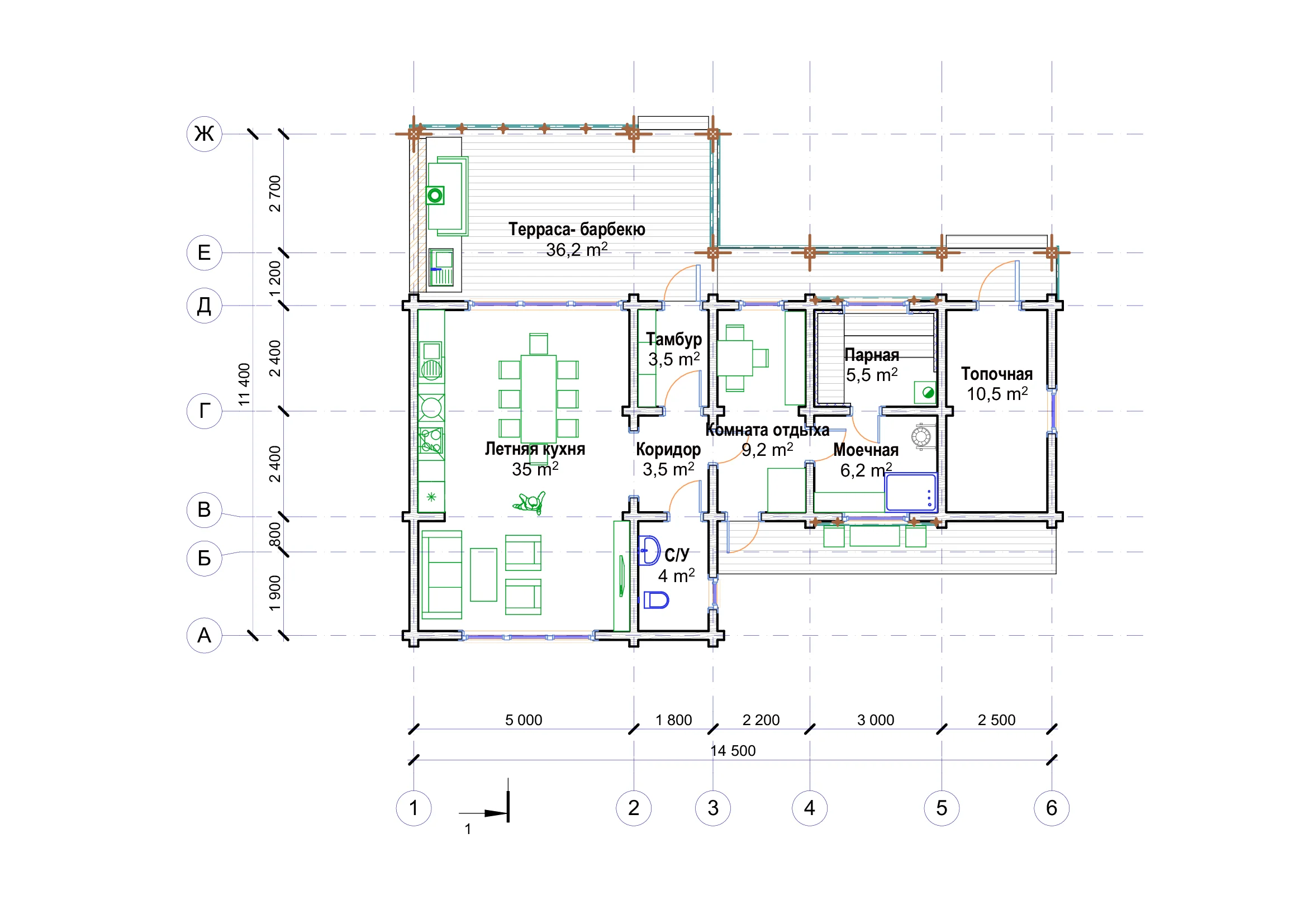
Площадь:
113 м2
Размер:
14.5х11.4
Этажность:
1
Технология:
Клееный брус
Фасады
Стандартная планировка








Мы сотрудничаем с ведущими компаниями на рынке
Наша философия: Построить для вас не просто дом, а надежное, теплое и стильное семейное гнездо, в котором будет комфортно поколениям.
Доверьте мечту профессионалам с десятилетней историей успешных проектов.














